Bán đất y tý sapa2 giữa trung tâm, bao check quy hoạch 0822356688
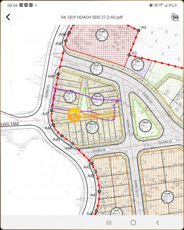
Lô đất thôn Ngải Trồ, trung trâm Y Tý. Diện tích 1215m2, mặt đường DT158, mặt tiền là 15,4m.
Đất hiện trạng là nương rẫy
Quy hoạch chung 1/10000 là đất ở làng xóm
Quy hoạch chi tiết 1/500 QĐ 1787/QĐ UBND ngày 28/5/2021 là đất ở đô thị.
Đất ở đô thị được phép xây nhà kiên cố, nhưng theo quy định mẫu chung về quy hoạch là 4 tầng với diện tích chia theo lô 5m x 22m tức 110m2/ 1 lô đất, mật độ xây dựng là 76m2 đến 79m2. Vậy tức là với lô đất này sẽ chia được khoảng 4 đến 5 lô liền kề mỗi lô 110m2 trong đó 3 lô mặt đường tỉnh 20,5m tính cả vỉa hè và 3 lô mặt đường đô thị 13,5m2 tính cả vỉa hè. Cả 6 lô đều thoáng 2 mặt vì giữa có thiết kế sân chung.
Sát bên Trạm Y Tế xã Y Tý.
Đường đô thị đã hình thành và làm đẹp xong.
BIGSEALAND 0822 35 6688
Đất hiện trạng là nương rẫy
Quy hoạch chung 1/10000 là đất ở làng xóm
Quy hoạch chi tiết 1/500 QĐ 1787/QĐ UBND ngày 28/5/2021 là đất ở đô thị.
Đất ở đô thị được phép xây nhà kiên cố, nhưng theo quy định mẫu chung về quy hoạch là 4 tầng với diện tích chia theo lô 5m x 22m tức 110m2/ 1 lô đất, mật độ xây dựng là 76m2 đến 79m2. Vậy tức là với lô đất này sẽ chia được khoảng 4 đến 5 lô liền kề mỗi lô 110m2 trong đó 3 lô mặt đường tỉnh 20,5m tính cả vỉa hè và 3 lô mặt đường đô thị 13,5m2 tính cả vỉa hè. Cả 6 lô đều thoáng 2 mặt vì giữa có thiết kế sân chung.
Sát bên Trạm Y Tế xã Y Tý.
Đường đô thị đã hình thành và làm đẹp xong.
BIGSEALAND 0822 35 6688
Đặc điểm
- Đất ở, thổ cư
- 1215m² (25m x 20m)
- 158, Xã Y Tý, Huyện Bát Xát, Lào Cai
- Mặt tiền, đường rộng 5m
- Sổ đỏ
Liên hệ
- Lý Thanh Thanh
- 0822356688
Khoảng 1 tháng



